|
86.89 millió Ft
|
|
| Alapterület | 90 m2, 900 m2-es telken |
| Szobák száma | nincs megadva |
| Építési mód | Tégla |
| Állapot | Új építésű |
| Emelet | nincs megadva |
További paraméterek
Részletes leírás
Új építésű, Frézia típusház 900 m²-es telekkel Dunakilitin
Fűtéskész állapotban – nagy méretű, jól használható telekkel
Eladó Dunakiliti csendes, családias részén egy új építésű, Frézia típusú családi ház, amely fűtéskész állapotban kerül átadásra.
Az ingatlan egy 900 m²-es, 30×30 méteres sík telekre épül, amely méretének köszönhetően bőséges életteret biztosít családok számára, és lehetőséget ad kert, játszótér, medence vagy további kiegészítő épületek kialakítására is.
A telek mérete a környéken kifejezetten ritka, a 30% beépíthetőség (Lf 4,5 övezet) pedig további fejlesztéseket is lehetővé tesz.
Az ingatlan főbb jellemzői
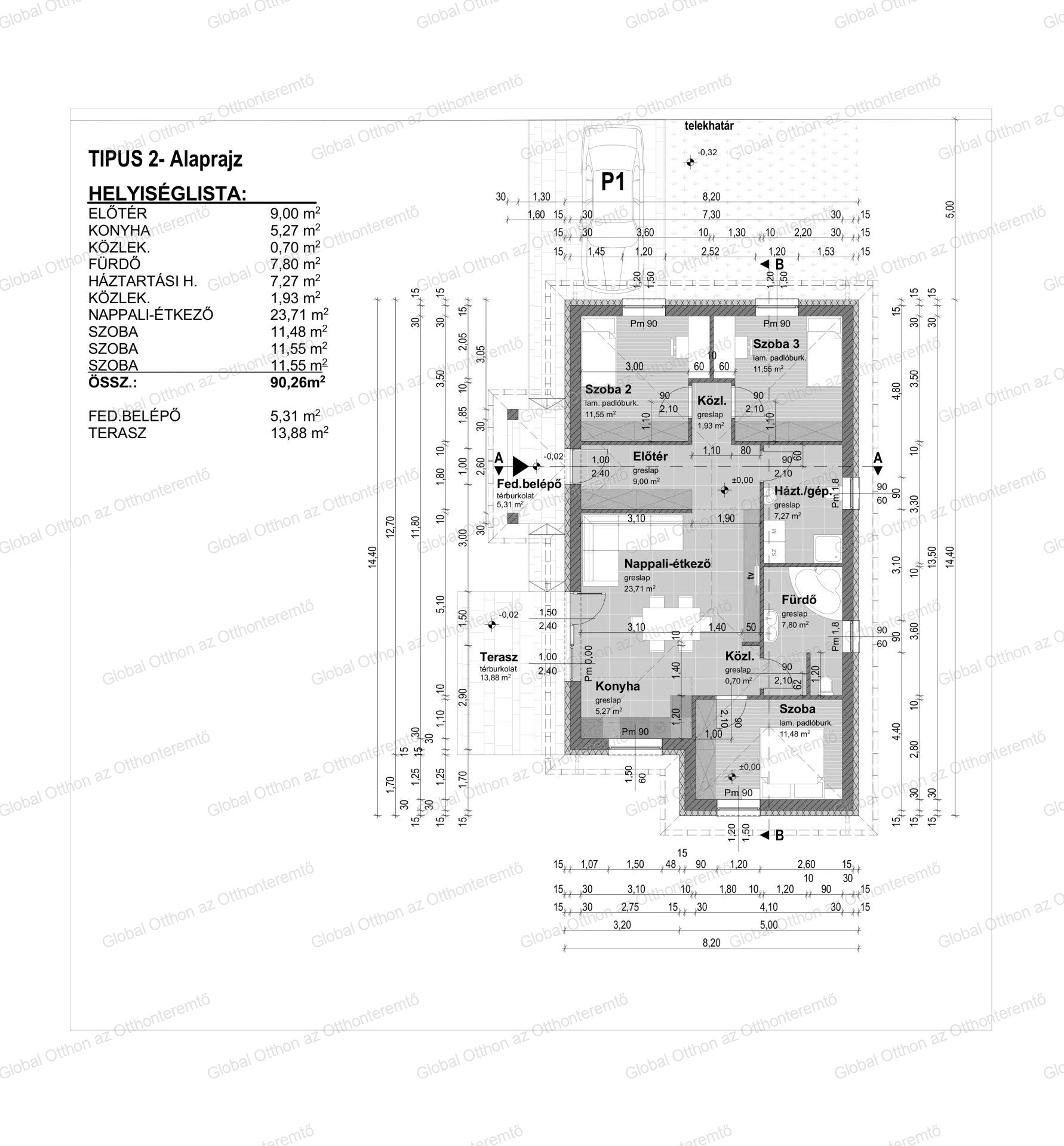
Összes lakótér: 90,26 m²
Tágas, világos nappali–étkező: 23,71 m²
Három külön nyíló hálószoba
Nagyméretű fedett terasz: 13,88 m²
Fedett bejárati rész: 5,31 m²
Funkcionális, praktikus alaprajz
Energiatakarékos építési megoldások
Minőségi, modern nyílászárók
Egyedi igények szerint továbbfejleszthető belső terek
Helyiségek részletesen
Előtér: 9,00 m²
Konyha: 5,27 m²
Közlekedő: 0,70 m²
Fürdő: 7,80 m²
Háztartási helyiség: 7,27 m²
Közlekedő: 1,93 m²
Nappali–étkező: 23,71 m²
Szoba: 11,48 m²
Szoba: 11,55 m²
Szoba: 11,55 m²
Fedett belépő: 5,31 m²
Terasz: 13,88 m²
Összes lakótér: 90,26 m²
Műszaki leírás (rövidített – teljes dokumentáció érdeklődésre átadva)
Monolit vasbeton sávalap
30-as kerámia falazóblokkok
Rácsos tartós tetőszerkezet cserépfedéssel
15 cm homlokzati hőszigetelés
25 cm födémszigetelés
REHAU / Kömmerling háromrétegű műanyag nyílászárók
Fűtéskész állapot: víz-, szennyvíz-, villamos hálózat kiépítve; fűtésrendszer előkészítve
Burkolatok, beltéri ajtók, festés és szaniterek nélkül kerül átadásra
A telek kiemelt előnyei
900 m², ideális családok számára
Szolgalmi útról megközelíthető
Sík, jól használható, könnyen beépíthető
30% beépíthetőség, Lf 4,5 övezet
Nagy, összefüggő kert kialakítható
Több autó beálló vagy garázs is könnyedén elhelyezhető
Kiváló lehetőség azoknak, akik nyugalmat, teret és privát környezetet keresnek
Ár
Ház fűtéskészen: 58 891 770 Ft
Telek: 28 000 000 Ft
Teljes ár együtt: 86 891 770 Ft
Finanszírozás
Az ingatlanhoz teljes körű hitel- és CSOK Plusz tanácsadást biztosítunk, valamint segítünk a legkedvezőbb finanszírozási konstrukció kiválasztásában is.
Érdeklődni:
Globál Otthon Ingatlaniroda
Kobli Csaba
Telefon: +36 30 946 4926
E-mail: [email protected]

