|
99.8 millió Ft
|
|
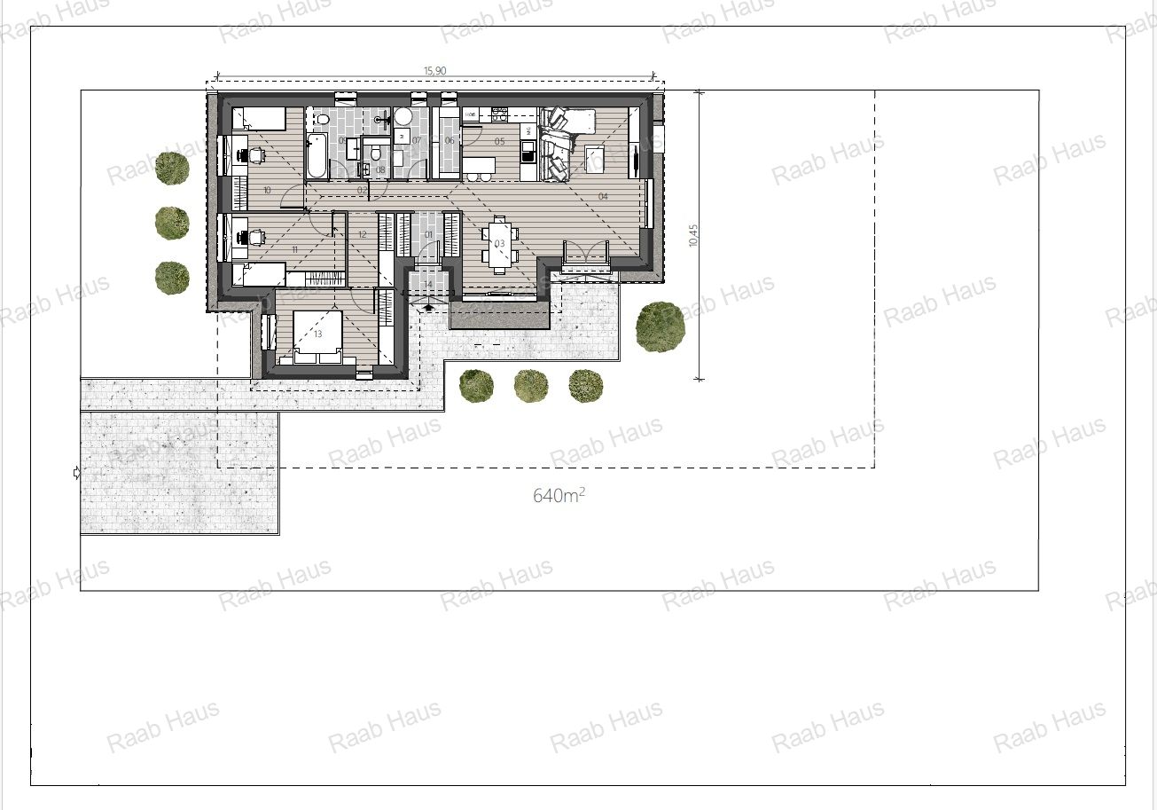
| Alapterület | 100 m2, 640 m2-es telken |
| Szobák száma | 4 szoba |
| Építési mód | Tégla |
| Állapot | Új építésű |
| Emelet | nincs megadva |
További paraméterek
CSOK igényelhető
Otthon Start 3%-os hitellel- Fűtés: Hőszivattyú
- Bútorozottság: Bútorozatlan
- Szintek száma: 1
- Komfort: Összkomfort
- Energetika: A+
Részletes leírás
Komáromban épülő, gyönyörű, energiatakarékos családi ház lefoglalható!
Épülő, gyönyörű és egyedi családi ház Komáromban, amely ideális választás lehet a modern életstílust kedvelők számára. Az ingatlan alapterülete 100 négyzetméter, a telek mérete pedig 640 négyzetméter, így bőséges teret biztosít a családi élethez és a szabadidős tevékenységekhez.
A ház hatalmas napfényes közös élettérrel, 3 tágas szobával, és gardróbbal rendelkezik, kényelmes otthont nyújt. Az épület 2026-ban készül el, és a legmodernebb technológiával épül,kiváló energetikai hatékonyságot biztosít. Az energetikai tanúsítvány A+ minősítéssel rendelkezik, így nemcsak környezetbarát, hanem a rezsiköltségek szempontjából is kedvező választás.
A fűtés hőszivattyús rendszerrel működik, amely gazdaságos és környezetkímélő megoldást nyújt a téli hónapokban, klíma előkészítés szintén benne van az árban.
Az ár fűtéskész állapotra vonatkozik, telekkel együtt, mely 99 803 000 Ft, kulcsrakész befejezés felár ellenében kérhető.
Ez egy modern, kényelmes és energiatakarékos otthon, ne hagyja ki ezt a kivételes lehetőséget, hívjon még ma!
Otthon Start hitel és CSOK Plusz igényelhető erre az ingatlanra.

