Nyitólap Hirdetésfeladás Kapcsolat
Eladó Családi ház, Sülysáp
#390206
69.9 millió Ft
Alapterület 94 m2,  522 m2-es telken
Szobák száma 4 szoba
Építési mód nincs megadva
Állapot Új építésű
Emelet nincs megadva

További paraméterek

  • Kilátás: Kertre néző
  • Komfort: Összkomfort

Részletes leírás

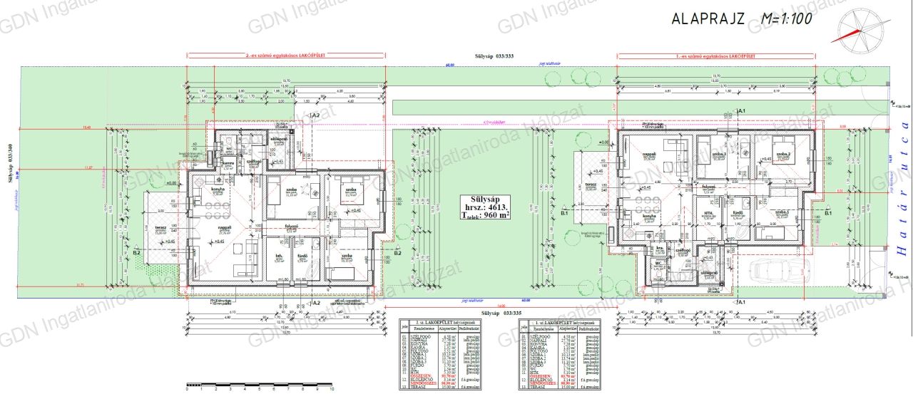
Sülysápon a Határ úton 960 m2-es telken, 93,76 m2-es három szoba + amerikai konyhás nappalival rendelkező, energiahatékony családi házak eladók! Az építkezés December 11.-én indul! A Határ út Sülysáp Kóka felőli utolsó utcája, mégis közel van a központhoz. A telekről csodálataos panoráma nyílik a mögötte elhelyezkedő szántóra és az erdőre. Az első ingatlan 438 m2-es kizárólagos használatú telekrésszel kerül kialakításra. Vételára: 69.900.000.- Ft. A hátsó ingatlan egy 3 méter széles a telek jobb oldalán kialakított úton lesz megközelíthető, 522 m2 telekrésszel fog rendelkezni., vételára: 74.900.000.- Ft. A tartószerkezeti falak Porotherm P30N+F téglából, betonkoszorúval, fa födémes tetőszerkezettel készülnek. A lábazat 10 cm polisztirol lépésálló, a homlokzatok 15cm-es EPS, a vízszintes födém 25 cm ásványgyapot szigeteléssel lesz ellátva. Három rétegű üvegekkel szerelt, hat légkamrás műanyag thermo nyílászárók kerülnek beépítésre. A minimális energiaigényt a megfelelő szigetelésen kívül a megújuló energiát használó gépészet is biztosítja. A fűtést levegő-víz hőszivattyús rendszer fogja végezni. Burkolatok , szaniterek, belső ajtók, csaptelepek választhatóak a következő értékhatárig: -Hidegburkolat: 3000 Ft.-/m2 -Melegburkolat: 3000 Ft.-/m2 -Beltéri ajtók: 30.000.Ft.-/db -Fürdőkád: 40.000.- Ft.- -Csaptelepek: 15000.- Ft.-/db Magasabb árú választás is lehetséges, a különbség finanszírozásával. A kivitelező korábban az utcában épített 6 ingatlant melyeket már birtokba adtuk, komoly érdeklődés esetén szívesen megmutatjuk őket referenciaként. Központi elhelyezkedésének köszönhetően a közelben megtalálhatóak: -óvoda 400m -Móra Ferenc általános iskola 700m -Tesco 800m -Vasútállomás 550m -Polgármesteri hivatal 750m -Sülysáp 1-es Posta 750m -Sülysáp Városi Piac 1km Csok plusz igényelhető! Tervezett átadás 2026 második negyedév. Érdeklődő ügyfeleinknek a tervdokumetációt és a műszaki tartalmat készséggel rendelkezésre bocsájtjuk. INGYENES hitel tanácsadás, CSOK Plusz ügyintézés! BANKFÜGGETLEN hitelcentrumunk az összes elérhető bank és hitelintézet ajánlatát versenyezteti az Ön kedvéért, ráadásul DÍJMENTESEN. - Egyedi, bankfiókban nem elérhető kamat- és díjkedvezmények - Hitelképesség vizsgálat - Idő, energia és pénz megtakarítás - Teljes hivatali ügyintézés Amennyiben hirdetésem felkeltette az érdeklődését vagy egyéb információra van szüksége hívjon bizalommal!

Kapcsolat

Horváth Péter

Ossza meg a hirdetést:
FacebookGplusTwitter