|
95.5 millió Ft
|
|
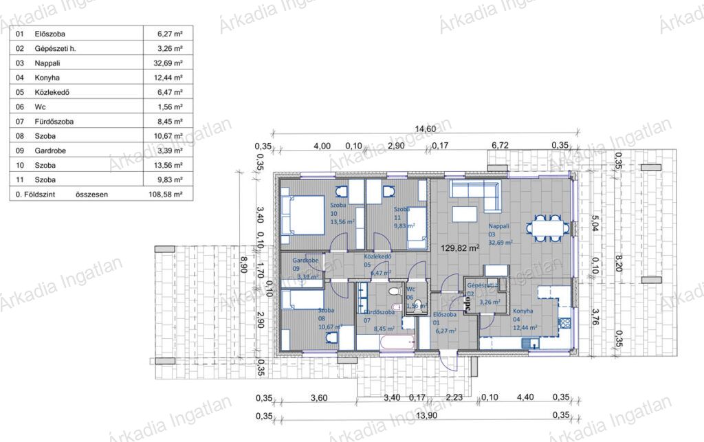
| Alapterület | 123 m2, 714 m2-es telken |
| Szobák száma | 3 szoba |
| Építési mód | nincs megadva |
| Állapot | Új építésű |
| Emelet | nincs megadva |
További paraméterek
Részletes leírás
Új építésű családi ház Szandaszőlősön
Új építésű, önálló kerámia családi ház Szandaszőlősön
MIÉRT KERÁMIAHÁZAK? ….. MERT ESZTÉTIKUSAK?
IGEN AZOK IS, DE NEM EZ A LEGFŐBB SZEMPONT!
TELJESÍTJÜK A 25%.-BAN MEGÚJULÓ ENERGIA IGÉNYT!
H-TARIFÁS FŰTÉSI-HŰTÉSI ÉS MELEGVÍZ ELÖÁLLITÁSI RENDSZERREL HASZNÁLHATÓ!
ELSŐOSZTÁLYÚ – EGÉSZSÉGES – ENERGIATAKARÉKOS
AZ ÉPÍTKEZÉSRE FORDÍTOTT IDŐ RÖVIDEBB.
Új építésű önálló családi ház ( 80,1 millió Ft + 15 millió Ft telek ),tervezési szinten, különböző méretben, garázzsal, vagy anélkül eladó.
A 714 m2-es önálló telken. Közművek az aszfaltos úton a telek előtt.
A típusházaink ára a tervezés költségét tartalmazzák, amennyiben változtatás nélkül kérik a megrendelőink. Műszaki tartalmat érintő, illetve egyéb módosítást igénylő kérdésekkel kérjük, hogy lépjenek velünk kapcsolatba.
A környék csendes, jól frekventált, pár percre a központ (buszmegálló, bolt, posta, általános iskola, óvoda, bölcsöde...).
https://www.perfektotthonok.hu/muszaki-tartalom-keramiahaz/
Igyekszünk minden igényt kielégíteni, az energiatakarékos üzemeltetés és a
megújuló energia felhasználása központi fontosságú számunkra.
Ez egy ÖKO ház.
Anyaga könnyű beton kerámia kompozit. Kész ház. DE NEM KÖNNYŰSZERKEZETES!
Csak HIPOALLERGÉN, természetes anyagokat használnak.
Semmilyen káros anyag kibocsátása nincs, megújuló energiát használ,
gyakorlatilag a megrendeléstől számított 6-7 hónapon belül költözhető.

