|
76 millió Ft
|
|
| Alapterület | 94 m2, 395 m2-es telken |
| Szobák száma | 3 szoba |
| Építési mód | Tégla |
| Állapot | Új építésű |
| Emelet | nincs megadva |
További paraméterek
CSOK igényelhető
Jó közlekedéssel
Kertkapcsolatos
Zöldövezeti- Kilátás: Udvari
- Fűtés: Hőszivattyú
- Komfort: Dupla komfort
Részletes leírás
Szombathelyen az Oladi platón év végéig megépülő családi ház eladó!
Szombathely az Oladi Platón a város legkedveltebb és folyamatosan bővülő, fejlődő családi házas lakóövezezetében családi ház 2025. év végi átadással eladó.
Kedvezményes hitel, más finanszírozási lehetőségek igénybe vehetőek.
Válassza ki Ön a beépítendő burkolatokat, csempe, járólap, parketta, spc, wpc...
Válasszon színt az ajtónak, válasszon csapokat, zuhanyzót, térburkolatot.
Modern-időtálló tervezés, alacsony resziköltség
2 illetve 3 szoba + nappali kialakítás
hőszívattyú, napelem bővíthetőség
Különálló garázs + kertkapcsolat
CSOK + CSOK hitel + babaváró+ kedvező hitelajánlatok
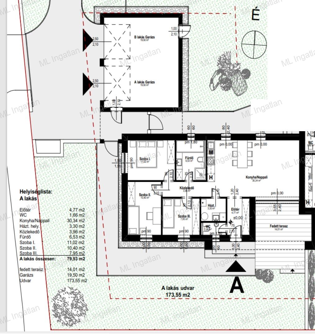
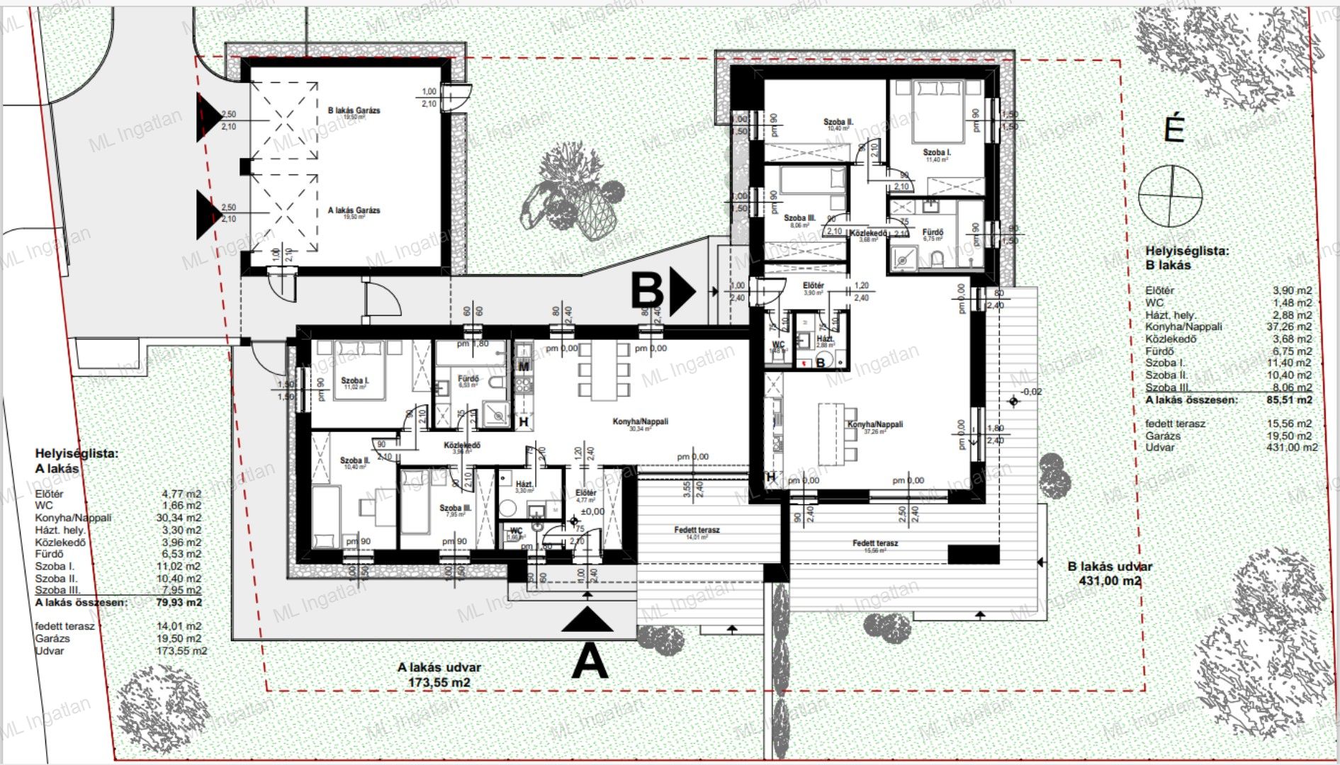
A, épület: 80 m2 + 14 m2 fedett terasz + 395 m1 kert + 19,5 m2 garázs
B. épület : 86 m2 + 15 m2 fedett terasz + 431 m1 kert + 20 m2 garázs
Előtér 4,77 m2
WC 1,66 m2
Konyha/Nappali 30,34 m2
Házt. hely. 3,30 m2
Közlekedő 3,96 m2
Fürdő 6,53 m2
Szoba I. 11,02 m2
Szoba II. 10,40 m2
Szoba III. 7,95 m2
A lakás összesen: 79,93 m2 fedett terasz 14,01 m2 Garázs 19,50 m2 Udvar 173,55 m2
A Garázs ára megrendelés esetén: 4.650.000 ft
Műszaki tartalom:
Falazat: a teherhordó felmenő falazatok 30 cm vastag Wienerberger Poroterm 30 N+F kerámia falazóelemekből készül (tégla)
Homlokzati hőszigetelő rendszer: a homlokzati falfelületek 15 cm vtg. EPS hőszigetelő rendszert, a lábazatok 10 cm vtg. XPS lábazati hőszigetelő rendszert kapnak.
Padlás hőszigetelése: 30 cm ásványgyapot szigetelőanyaggal történik
Külső nyílászárók: műanyag, 3 rétegű üvegezéssel szerelt, fehér színű ablakok, 5 kamrás, fehér kilinccsel, a kiviteli terven szereplő nyitásirányokkal
Meleg burkolat: laminált parketta, szegély, alátét habfólia: bruttó 4.500.- Ft/m2 árig
Hideg burkolat: bruttó 5.500.- Ft/m2 árig
Fűtés és meleg vízellátás, égéstermék elvezetés, csapadékvíz elvezetés: a fűtést biztosító háztartási helyiségben elhelyezett 10 Kw Gree Versati 3 hőszivattyú, padlófűtéses rendszer készül 1 db szabályozható termosztáttal.
Riasztó előkészítés 5 db érzékelési ponttal. Kaputelefon előkészítés. Belső világítás előkészítés (vezetékes kiépítése helyiségenként egy db kiállással)
Ügyfeleim igénybe vehetik szolgáltató cégünk teljes csomagját.: -hitelügyintézés, komplett berendezés megtervezés, bérbeadás lebonyolításáig teljes körű segítséget nyújt.
Részletekért kérem hívjon.
Egyeztessünk időpontot egy személyes találkozóra és a helyszínen megtekintheti az ingatlant..
Simon Zsolt
06209504680
