|
59.9 millió Ft
|
|
| Alapterület | 91 m2, 438 m2-es telken |
| Szobák száma | 4 szoba |
| Építési mód | Tégla |
| Állapot | Új építésű |
| Emelet | nincs megadva |
További paraméterek
CSOK igényelhető
Igényes
Kertkapcsolatos
Megújuló energiaforrás
Otthon Start 3%-os hitellel
Remek ajánlat!
Sürgős
Új építésű!- Fűtés: Hőszivattyú
- Komfort: Összkomfort
Részletes leírás
Remek ajánlat!
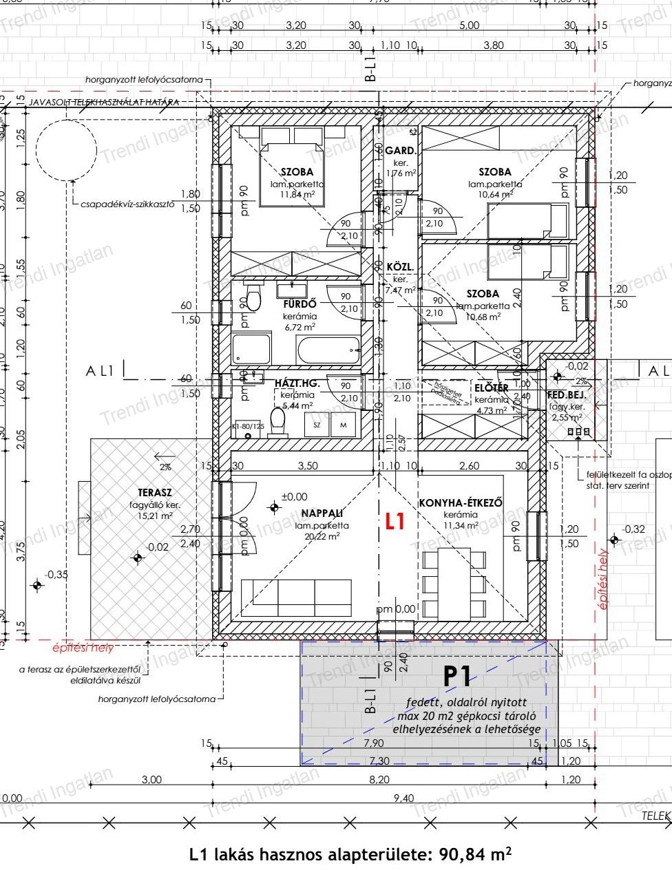
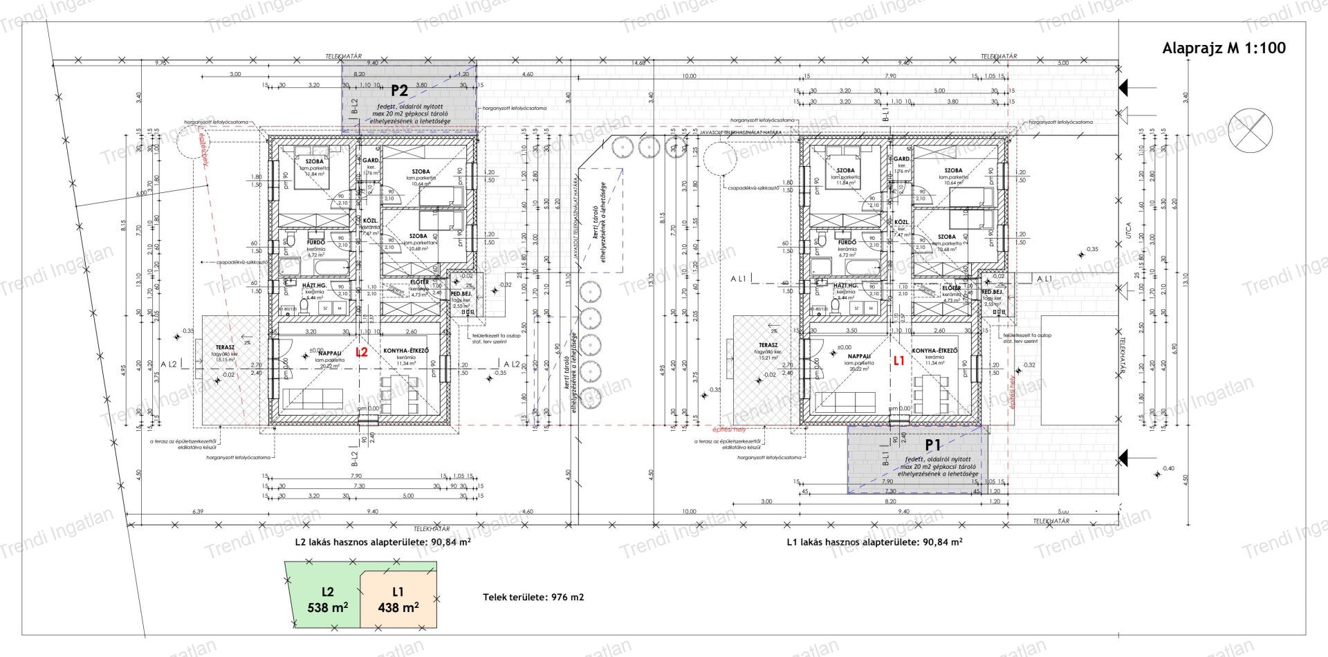
Győrság új építésű részén 90,84 nm-es nappali + 3 szobás ikerház 438 nm-es telekrészen eladó. A két ház önállóan megközelíthető, nincs közös fal.
A remek elosztású házban amerikai konyhás nappali, 3 szoba, fürdőszoba, háztartási helyiség, előtér, gardrób, közlekedő található. A nappaliból 15,21 nm-es terasz nyílik.
A ház 30-as falazóelemből, 15 cm-es homlokzati szigeteléssel, 3 rétegű műanyag nyílászárókkal kerül kivitelezésre. Az ingatlan fűtését és melegvíz ellátását hőszivattyú biztosítja padlófűtéssel. Felár ellenében kerti csap, klíma- és riasztó előkészítés, terasz, térkövezés kérhető.
Fűtéskész átadás várható ideje: 2026 ősz
Az ingatlan fűtéskész ára: 59.900.000 Ft. Kulcsrakész befejezés kérhető.
Az ár tartalmazza a telek árát is.
Bővebb információkért forduljon hozzám bizalommal.
Hétköznap és hétvégén is várom hívását!
Díjmentes, bankfüggetlen hitelügyintézéssel állunk rendelkezésére.
A hirdetésben feltüntetett képek illusztrációk.

