Nyitólap Hirdetésfeladás Kapcsolat
Eladó Ikerház, Inárcs
#689600654
90.5 millió Ft
Alapterület 104 m2,  943 m2-es telken
Szobák száma 5 szoba
Építési mód Gázbeton, YTONG
Állapot Új építésű
Emelet nincs megadva

További paraméterek

  • Családoknak
  • CSOK felvehető
  • CSOK igényelhető
  • Jó közlekedéssel
  • Kertkapcsolatos
  • Megújuló energia
  • Otthon Start 3%-os hitellel
  • TERASZ
  • Választható burkolatok
  • Kilátás: Udvari
  • Fűtés: Hőszivattyú
  • Szintek száma: 1
  • Komfort: Dupla komfort

Részletes leírás

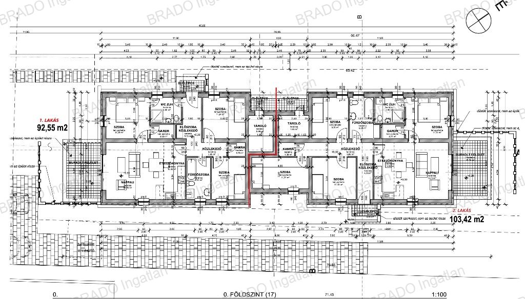
INÁRCSON ÚJ ÉPÍTÉSŰ IKERHÁZ

Inárcson kínálunk eladásra egy  új építésű, 104 nm- es, kulcsrakész ikerház felet, melyhez 943 nm lekerített telekrész tartozik. /Az első ingatlan 93 nm, 317 nm-es telekrésszel, nappali + három hálószobával./ A két lakás egymás mögött helyezkedik el, a hirdetésben szereplő a hátsó.
A lakás földszintes, helyiségei: előszoba, étkező-konyha-nappali, négy hálószoba, két fürdőszoba, gardrób, kamra, tároló,  terasz.
Gépjárművek a telken belül parkolhatnak.
A ház Ytongból épült, 15 cm-es homlokzati szigeteléssel, fa födémmel, 25 cm-es födémszigeteléssel.
A fűtés hőszivattyús rendszerrel megoldott, padlófűtéssel, a meleg vízellátás hőszivattyús villanybojlerrel működik. A nappaliban hűtő-fűtő klíma kerül beépítésre.
A hidegburkolatok kerámia anyagúak, a teraszokon csúszásmentes kivitelűek, a meleg burkolat laminált parketta. Mindkettő 6000 Ft/ nm árig van benne a vételárban. 
A lakások antracit nyílászárói redőnnyel, szúnyoghálóval, a lakások riasztó- és klíma-előkészítéssel készülnek. 
A vételár kulcsrakész állapotra vonatkozik. 
Várható átadás 2026. február vége.
Bővebb információért,  részletes műszaki tartalomért, keressen a megadott elérhetőségek bármelyikén. 

 

Kapcsolat

dr.Szokolai Imre

Hitel tanácsadó

Ossza meg a hirdetést:
FacebookGplusTwitter