|
79.9 millió Ft
|
|
| Alapterület | 94 m2, 750 m2-es telken |
| Szobák száma | 4 szoba |
| Építési mód | Tégla |
| Állapot | Új építésű |
| Emelet | nincs megadva |
További paraméterek
- Fűtés: Kondenzációs kazán
- Komfort: Összkomfort
Részletes leírás
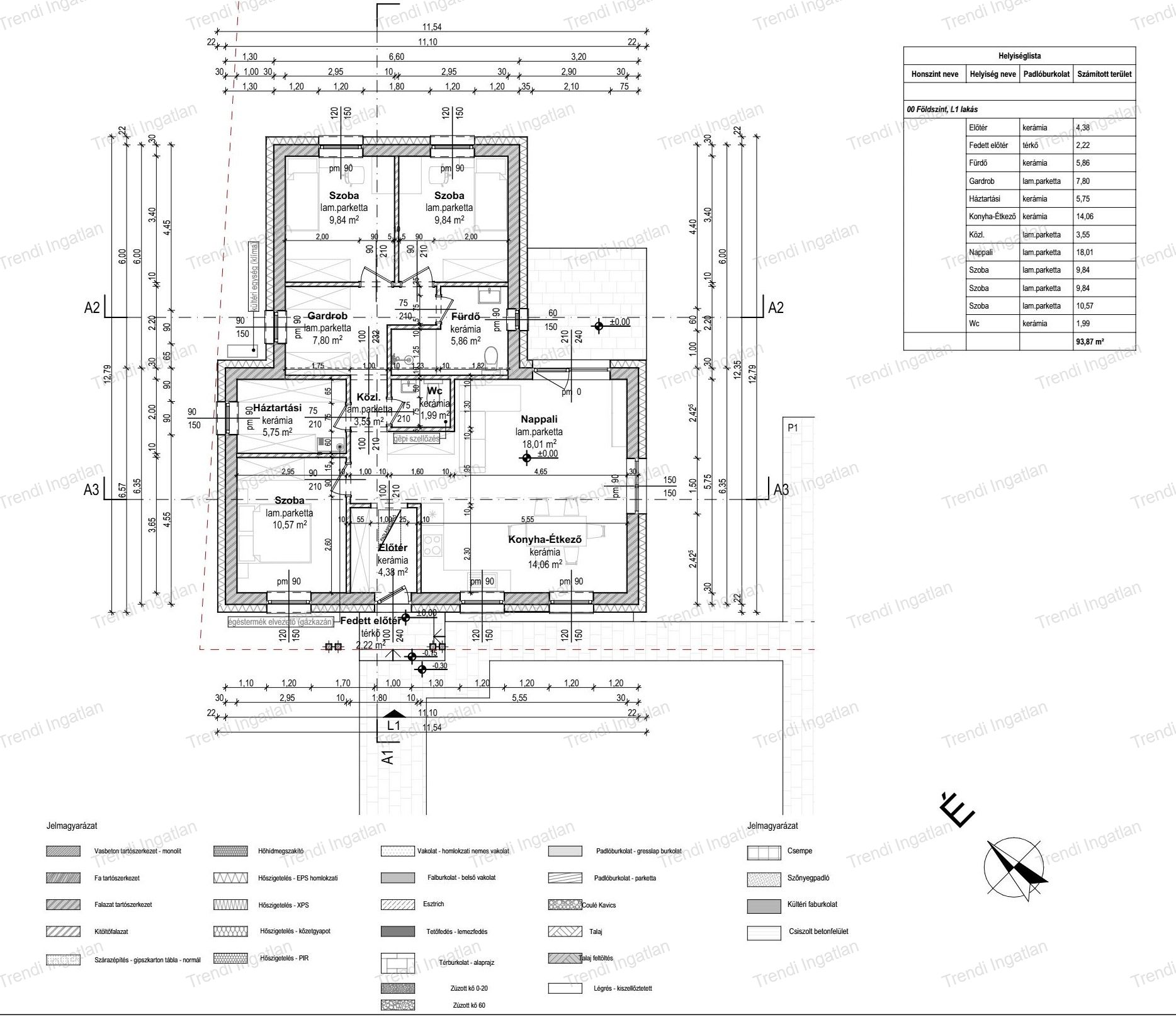
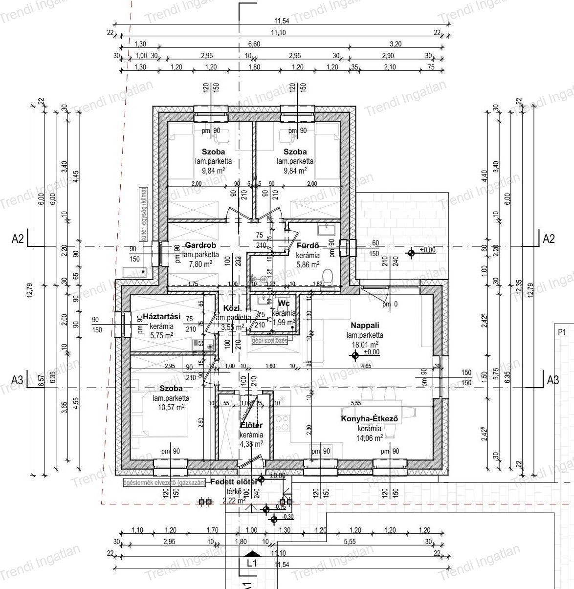
Töltétaván nappali + 3 szobás ház 750 nm-es telken eladó
Töltéstava csendes utcájában, a Pannonhalmi Főapátságra néző 93,87 nm-es, nappali + 3 szobás ikerház 750 nm-es telekrészen eladó. A két ház egymás mellett, 1500 nm-es telken épül, nincs közös fal.
A remek elosztású házban amerikai konyhás nappali, 3 szoba, fürdőszoba, háztartási helyiség, külön WC, előtér, közlekedő található.
A ház 30-as falazóelemből, 15 cm-es homlokzati szigeteléssel, 3 rétegű műanyag, hőszigetelt üvegezésű nyílászárókkal kerül kivitelezésre. Az ingatlan fűtését kondenzációs kazán biztosítja, minden helyiségben padlófűtéssel. A nappaliba hűtő-fűtő klíma kerül felszerelésre. Felár ellenében hőszivattyús fűtés, kerti csap, riasztó előkészítés, klíma- és redőnyelőkészítés, térkövezés stb. kérhető. A ház belső elrendezése a készültségi fokhoz mérten még változtatható.
Fűtéskész átadás várható ideje: 2026 ősz
Az ingatlan fűtéskész ára: 79.900.000 Ft.
Kulcsrakész befejezés kérhető. Kulcsrakész ár: 87.900.000 Ft.
Az ár tartalmazza a telek árát is.
Bővebb információkért forduljon hozzám bizalommal.
Hétköznap és hétvégén is várom hívását!
Díjmentes, bankfüggetlen hitelügyintézéssel állunk rendelkezésére.

