Nyitólap Hirdetésfeladás Kapcsolat
Eladó Nyaraló, Balatonszemes
#17112779
59.9 millió Ft
Alapterület 42 m2,  19 m2-es telken
Szobák száma 1 szoba
Építési mód Tégla
Állapot Új építésű
Emelet Földszint

További paraméterek

  • Azonnal költözhető
  • Erkélyes/teraszos
  • Kertkapcsolatos
  • Panorámás
  • Társasházi nyaraló
  • Vasút és a Balaton között
  • Vizközeli - Balaton max. 500 méter
  • Vízparti
  • Zöldövezeti
  • Kilátás: Panorámás
  • Fűtés: Hőszivattyú
  • Bútorozottság: Bútorozatlan
  • Szintek száma: 2
  • Komfort: Luxus
  • Akadálymentesítés: Akadálymentesített

Részletes leírás

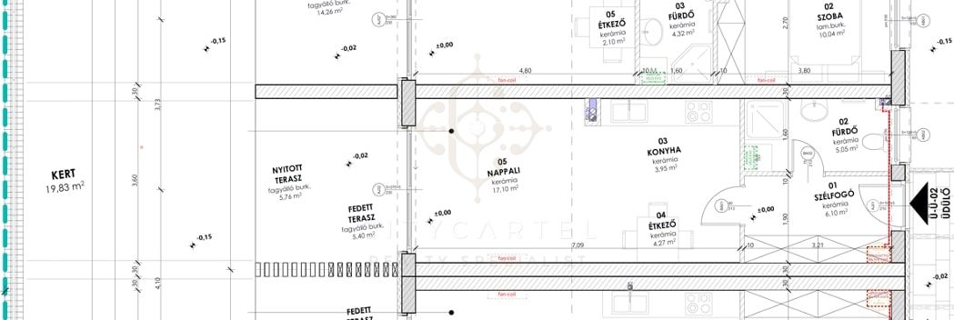
Azonnal költözhető, közvetlen vízparti nyaraló eladó Balatonszemesen – új építésű luxustársasházban!

 

A City Cartel Ingatlaniroda eladásra kínál Balatonszemes egyik legkülönlegesebb új építésű, közvetlen vízparti társasházának földszintjén egy 36 m²-es nyaralót, amelyhez egy 11 m²-es terasz és egy 19 m2-es kizárólagos használatú kert tartozik, lélegzetelállító balatoni látképpel.

 

A lakás főbb jellemzői:

-Amerikai konyhás nappali 

-Zuhanyzós fürdőszoba, WC-vel

-11 m²-es terasz

-19 m2-es kizárólagos használatú kert

-Modern hőszivattyús hűtés-fűtés fan-coil rendszerrel, H-tarifás villanyórával

-Ariston Velis villanybojler biztosítja a meleg vizet

-Alumínium-műanyag, 3 rétegű üvegezésű nyílászárók, beépített alumínium redőnnyel

-Prémium minőségű új építésű kivitelezés

 

Az épület és környezete:

-Új építésű, exkluzív társasház két üvegfalas lifttel, teljes mértékben akadálymentesítve

-Tágas, parkosított telek, közvetlen, nádmentes vízparttal

-Az épület néhány lépésre található a Balaton hullámaitól

-A telken játszótér is kialakításra került

-Ősfás környezet, sétányokkal és szabadstrandokkal körülvéve

-Kiváló elhelyezkedés: éttermek, kávézók, büfék, szórakozási lehetőségek pár perces sétára

 

Opcionálisan megvásárolható extra helyiségek és parkolási lehetőségek:

Tároló: 3–9 m² | 875 000 Ft – 2 250 000 Ft

Parkolóhely3 000 000 Ft

Garázs6 000 000 Ft

 

További információkért írjon, vagy hívjon, a hét bármely napján az alábbi elérhetőségeim egyikén! 

Irodáink: 
8600 Siófok, Fő tér 6. (Sió Pláza -1. szint) 
8640 Fonyód, Ady Endre u. 5. (Balaton Áruház földszint) 
8638 Balatonlelle, Rákóczi út 276.  
  
Kövess minket Facebook-on is: @citycartelbalaton! 

Kapcsolat

Szűcs Gergely

Ossza meg a hirdetést:
FacebookGplusTwitter