Nyitólap Hirdetésfeladás Kapcsolat
Eladó Panellakás, Budapest, XVII. kerület, Rákoskeresztúri lakótelep
#209002025
69.9 millió Ft
Alapterület 73 m2
Szobák száma nincs megadva
Építési mód Panel
Állapot
Emelet nincs megadva

További paraméterek

  • Azonnal költözhető
  • CSOK igényelhető
  • Otthon Start 3%-os hitellel
  • Zöldövezeti
  • Kilátás: Parkra néző
  • Fűtés: Távfűtés egyedi méréssel
  • Bútorozottság: Bútorozatlan
  • Komfort: Összkomfort
  • Energetika: A
  • Internet: Optikai
  • Akadálymentesítés: Nem akadálymentesített

Részletes leírás

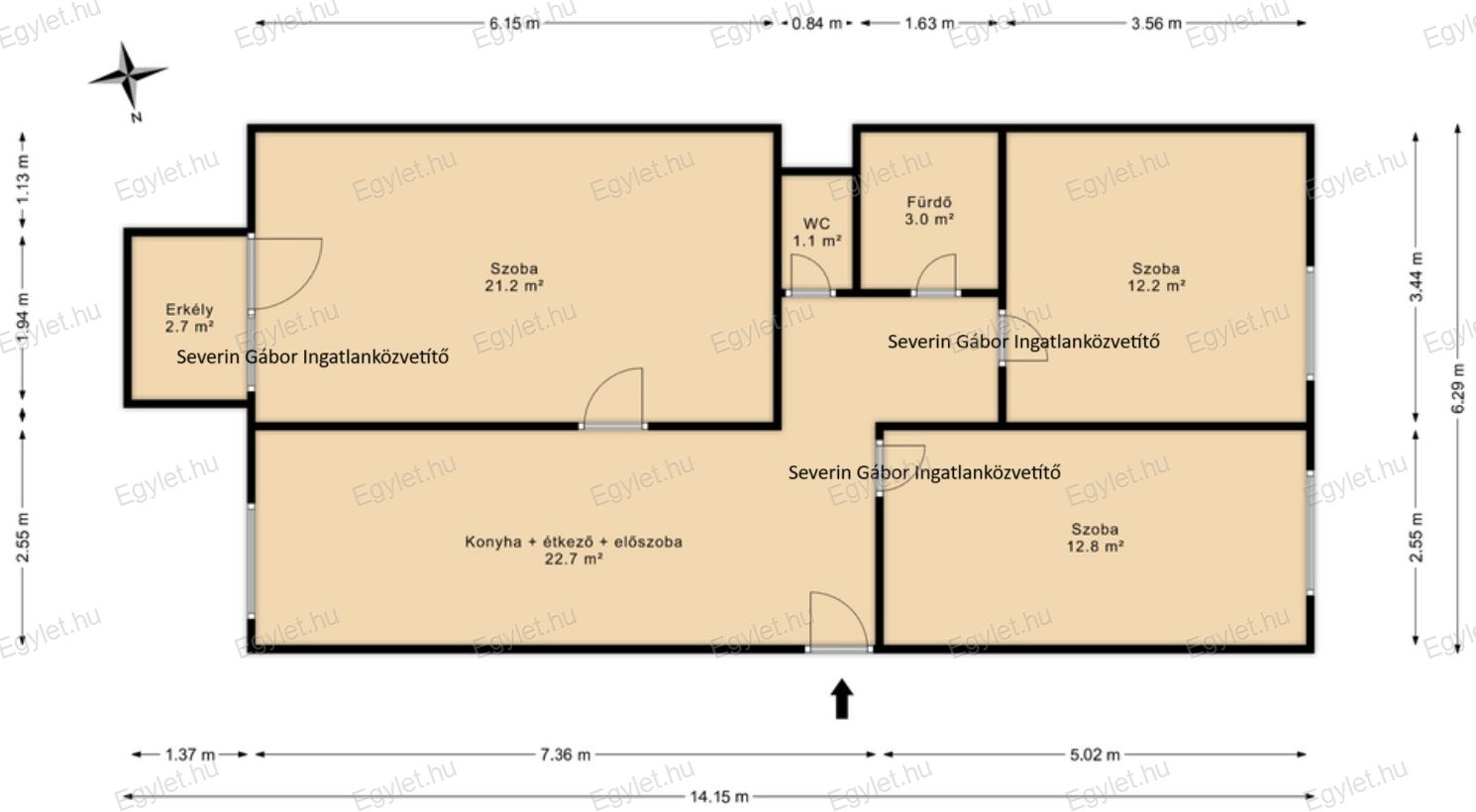
ELADÓ XVII.kerületi 3 SZOBÁS, ERKÉLYES LAKÁS!

Eladó Rákoskeresztúron (Budapest XVII. kerület) az Újlak utcai lakótelepen egy világos, keleti és nyugati tájolású, remek elosztású, 3 szobás, erkélyes lakás a 4 emeletes társasház 2. emeletén.

 

Saját részre vagy akár befektetésnek is kiváló, jól kiadható.

 

LAKÁS:

- 73 nm

- 3 nm-es erkély

- beépített konyhabútor

- távfűtés egyedi méréssel

- villamos hálózat réz kábelesre cserélve

- redőny + szúnyogháló

- biztonsági bejárati ajtó

- alacsony rezsi (víz, villany, fűtés) átlagosan 21 000 Ft/hó

 

PLUSZOK:

- zöld környezet, park, játszótér

- ingyenes parkolási övezet

 

KÖRNYÉK:

- tömegközlekedés: számos buszjárat megállója 200 méteren belül (97E, 161, 161A, 161E).

- közeli üzletek: Tesco, Penny, Spar, Aldi, Lidl, Jysk, Mömax

- a közvetlen közelben több bölcsőde, óvoda, általános és középiskola

 

Az ingatlan TEHERMENTES és rövid időn belül birtokba vehető.

 

KIZÁRÓLAG IRODÁNK KÍNÁLATÁBAN!

 

További részletekért és a megtekintéssel kapcsolatban keressen bizalommal a hét bármely napján 8 és 22 óra között, akár HÉTVÉGÉN is!

Kapcsolat

Severin Gábor

Ossza meg a hirdetést:
FacebookGplusTwitter