|
69.99 millió Ft
|
|
| Alapterület | 50 m2 |
| Szobák száma | 2 szoba |
| Építési mód | Tégla |
| Állapot | Új építésű |
| Emelet | 1. emelet |
További paraméterek
Erkélyes/teraszos
Kertkapcsolatos
Otthon Start 3%-os hitellel
Panorámás
Vasút és a Balaton között
Zöldövezeti- Kilátás: Panorámás
- Fűtés: Padlófűtés
- Bútorozottság: Bútorozatlan
- Szintek száma: 2
- Komfort: Összkomfort
Részletes leírás
Most akár 15%-kal olcsóbban vásárolhatja meg balatoni panorámás otthonát!
Döntse el Ön, hogy milyen áron és milyen konstrukcióval vásárol.
A lehetséges fizetési ütemezések:
25%-75%
50%-50%
75%-25%
A hirdetésben szereplő vételár 75%-25% konstrukció esetén értendő.
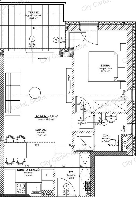
Balatoni panorámás, fedett gépkocsibeállóval rendelkező, vízparti utcában található társasházi lakás.
A CITY CARTEL INGATLANIRODA eladásra kínál Balatonlellén, új építésű, 9 lakásos, kis lélekszámú társasházban található, 1. emeleti, 50 m2 lakóterületű, 1+1 szobás téglalakást.
Magas műszaki tartalom, padló fűtés, fan-coil hűtés, elektromos alumínium redőnyők, lift, gyepszőnyeg, öntözőrenszer.
Egyedi fizetési ütemezés!
Várható átadás: 2026. III. negyedév.
A lakáshoz 1 db fedett gépkocsibeálló 5,5 millió forintért kötelezően mgvásárolandó.
További információkért írjon, vagy hívjon, a hét bármely napján az alábbi elérhetőségeim egyikén!
Irodáink:
8600 Siófok, Fő tér 6. (Sió Pláza -1. szint)
8640 Fonyód, Ady Endre u. 5. (Balaton Áruház földszint)
8638 Balatonlelle, Rákóczi út 276.
Kövess minket Facebook-on is: @citycartelbalaton!

