Nyitólap Hirdetésfeladás Kapcsolat
Eladó Téglalakás, Budapest, II. kerület
#705100467
215 millió Ft
Alapterület 91 m2
Szobák száma 4 szoba
Építési mód Tégla
Állapot Felújított
Emelet 1. emelet

További paraméterek

  • Azonnal költözhető
  • Jó közlekedéssel
  • Sürgős
  • Kilátás: Utcára
  • Fűtés: Klímás hűtés-fűtés
  • Bútorozottság: Bútorozatlan
  • Szintek száma: 4
  • Komfort: Összkomfort
  • Akadálymentesítés: Nem akadálymentesített

Részletes leírás

Ritka lehetőség a Széna téren: prémium rendelő / magánegészségügyi szolgáltató helyiség eladó!

Eladó Budapest II. kerületének egyik legértékesebb részén, a Széna téren, egy teljes körűen felújított, 91 m²-es prémium ingatlan, amelyet kifejezetten magánegészségügyi vagy szépségipari szolgáltatások céljára
alakítottak ki.


Az ingatlan egy patinás, LIFTES társasház első emeletén található.


AZONNAL KÖLTÖZHETŐ, teljes műszaki felszereltséggel, így ideális választás orvosi rendelő, fogászat, esztétikai klinika, gyógytorna, pszichológiai praxis vagy más prémium szolgáltatás számára.


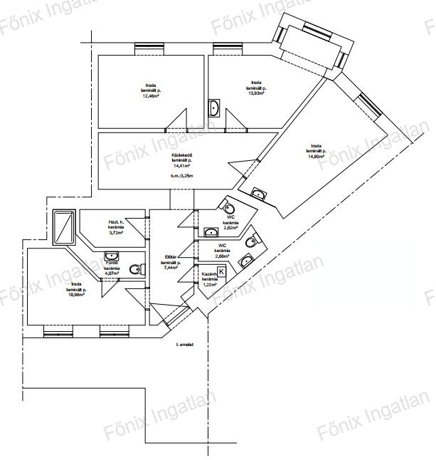
Helyiségek elosztása:

- 4 különálló, világos kezelőhelyiség (az egyik saját fürdőszobával)
- tágas, ügyfélbarát váróterem
- teljesen felszerelt személyzeti konyha
- 2 különálló mosdó (egyik akadálymentesítési lehetőséggel)
- gépészeti sarok

Műszaki tartalom:
- egyedi mérőórák minden helyiségben
- modern Viessmann kazán
- klimatizált helyiségek
- 3 rétegű hő- és hangszigetelt ablakok
- nagy sávszélességű internetkapcsolat

Ez az ingatlan nem csupán egy rendelő, hanem egy kész üzleti lehetőség.
Kialakítása révén azonnal hasznosítható egészségügyi szolgáltató központként.

 

A lokáció prémium presztízst biztosít a bérlők és páciensek számára.

 

Kiváló bérbeadási potenciál, magas éves hozammal.

 

Környékről:

 

Budapest egyik legfrekventáltabb közlekedési csomópontja
Villamos- és buszmegállók közvetlen közelben. M2 metró megálló 1 percre.
Mammut bevásárlóközpont, Millenáris Park, Budai Vár pár perc sétára.

***

Rare Opportunity at Széna Square: Premium Medical / Private Healthcare
Facility for Sale!

For sale in one of the most prestigious locations of Budapest’s District
II, at Széna Square, a fully renovated 91 m² premium property,
specifically designed for private healthcare or beauty industry
services.

The property is located on the first floor of an elegant,
elevator-equipped building, move-in ready with full technical equipment,
making it an ideal choice for a medical practice, dental clinic,
aesthetic clinic, physiotherapy, psychological practice, or other
premium service provider. The fully equipped kitchen is not part of the
purchase price, it is to be acquired for an additional 8 Million HUF.

Layout:

4 bright, separate treatment rooms (one with private en-suite bathroom)
spacious, client-friendly waiting room
fully equipped staff kitchen
2 separate restrooms (one with accessibility option)
technical/service corner
Technical features:

individual utility meters in every room
modern Viessmann boiler
air-conditioned rooms
triple-glazed, sound- and heat-insulated windows
high-speed internet connection
This property is not just a medical practice, but a ready-to-use
business opportunity. Thanks to its professional design, it can be
immediately utilized as a private healthcare center. Its premium
location provides both prestige and convenience for tenants and patients
alike, offering excellent rental potential with attractive annual yield.

Prime location – Széna Square:

One of Budapest’s busiest transportation hubs
Tram and bus stops within walking distance
Mammut Shopping Mall, Millenáris Park and Buda Castle just a few minutes
away

Kapcsolat

Héjja Gergő

Referens

+36 20 463-4650
[email protected]


Ossza meg a hirdetést:
FacebookGplusTwitter