|
119.81 millió Ft
|
|
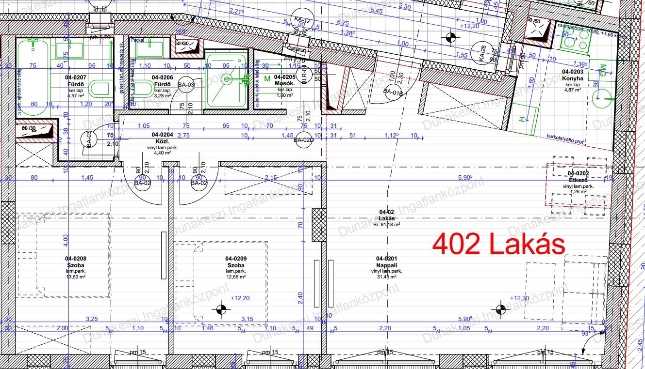
| Alapterület | 81 m2, 16 m2-es telken |
| Szobák száma | 4 szoba |
| Építési mód | nincs megadva |
| Állapot | nincs megadva |
| Emelet | nincs megadva |
További paraméterek
Részletes leírás
Budapesten, IV. kerületben ÚJ ÉPÍTÉSŰ, CSOK PLUSZ-KÉPES TÁRSASHÁZI LAKÁSok eladók!
A társasház Újpest városközpontban épül, kiválóan megközelíthető, és elérhető!
A lakások 2-től 4 szobáigg kerülnek kialakításra, jó elrendezéssel, erkéllyel.
Mélygarázs és felszíni parkoló vásárolható. A lakásokhoz tárolók is vásárolhatók.
Magas műszaki tartalommal épülő ingatlan, hőszivattyús fűtés és hűtés, magas minőségű nyílászárók, valamint szabadon választható burkolatok, szaniterek.
ZÖLD HITEL, CSALÁDI OTTHONTEREMTÉSI KEDVEZMÉNY (CSOK) és az ILLETÉKKEDVEZMÉNYEK igénybe vehetők, hitelügyintézésben díjtalanul segítséget nyújtunk.
A kivitelező megbízható, leinformálható, a kerületben referenciákkal rendelkezik!
INGYENES HITELÜGYINTÉZÉSSEL tudunk segíteni a legkedvezőbb hitel kiválasztásában!
Ingatlan eladásban kedvezményes feltételekkel tudunk segíteni.
Várjuk megtisztelő hívását időpontegyeztetéshez.

