Eladó Téglalakás, Kaposvár, Somssich Pál utca
#676603494
|
50 millió Ft
|
|
| Alapterület | 75 m2 |
| Szobák száma | 3 szoba |
| Építési mód | Tégla |
| Állapot | Felújított |
| Emelet | 2. emelet |
További paraméterek
Alacsony rezsi
Jó közlekedéssel- Kilátás: Utcára
- Bútorozottság: Bútorozott
- Szintek száma: 4
- Komfort: Összkomfort
- Internet: Szélessávú (>10Mbps)
Részletes leírás
Eladó tégla lakás Kaposvár belvárosában
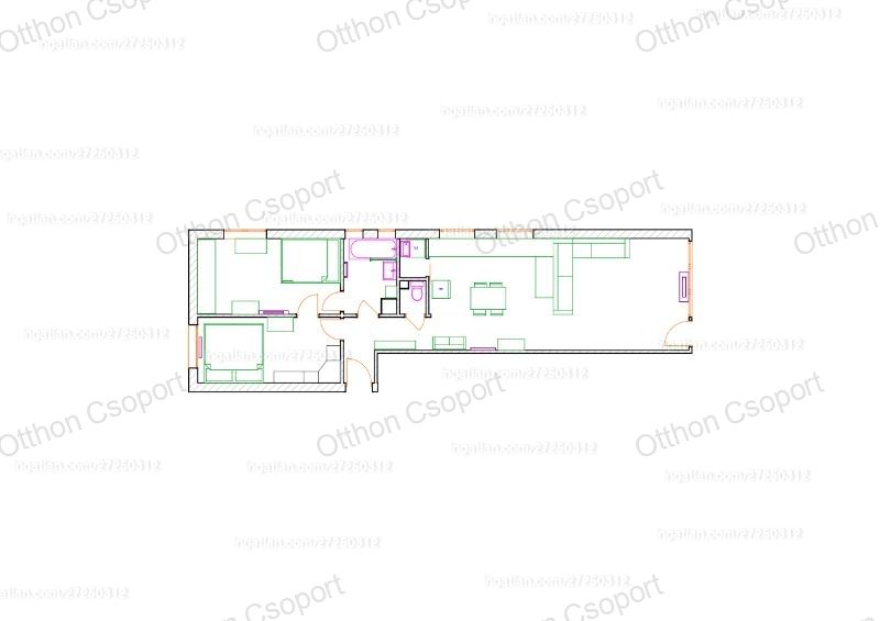
Kaposváron a Somssich Pál utcában tágas, világos, tégla építésű 75 m2-es, 2. emeleti felújított lakás eladó.
A lakásban előszoba, 2 szoba, nappali-étkező-konyha, kamra-mosókonyha,
fürdőszoba, wc helyiségek kerültek kialakításra, valamint 6m2-es terasz biztositja a nyugodt pihenést.
A lakás rezsije nagyon kedvező, a fűtése kombináltan gázzal és energiatakarékos Nobo fűtő panelokkal megoldott.
A lakásban az éjszakai áram használata is kialakításra került. Közelében bolt, gyermekorvosi rendelő, kórház, rendőrség, posta. A belváros is csupán 5 perc séta.
A lakáshoz tároló es egy 18 nm-es garázs tartozik, ami egy helyrajzi számon van a lakással, ezért csak együtt eladó.
Ennek ára 7 000 000 Ft, mely nem része a lakás vételárának.

