További paraméterek
Azonnal költözhető
Erkély
Jó közlekedéssel
Klíma
Medencés
Parkoló az árban
Terasz
Vízközeli- Fűtés: Cirkó
- Komfort: Összkomfort
Részletes leírás
SIÓFOK ARANYPARTON, ANNAK EGYIK LEGPATINÁSABB UTCÁJÁBAN, KÜLTÉRI MEDENCÉS TÁRSASHÁZBAN LAKÁS ELADÓ!
AZ UPDATE VIP INGATLANIRODA KÍNÁLATÁBÓL:
SIÓFOK ARANYPARTON, ANNAK EGYIK LEGPATINÁSABB UTCÁJÁBAN,
KÜLTÉRI MEDENCÉS TÁRSASHÁZBAN LAKÁS ELADÓ!
-BALATON kb 150-200m
Kiválóan alkalmas nyaralónak, befektetési célra (pl kiadás),
vagy akár életvitelszerűre lakhatásra egyaránt!
Azonnal költözhető!
-1. emeleti lakás
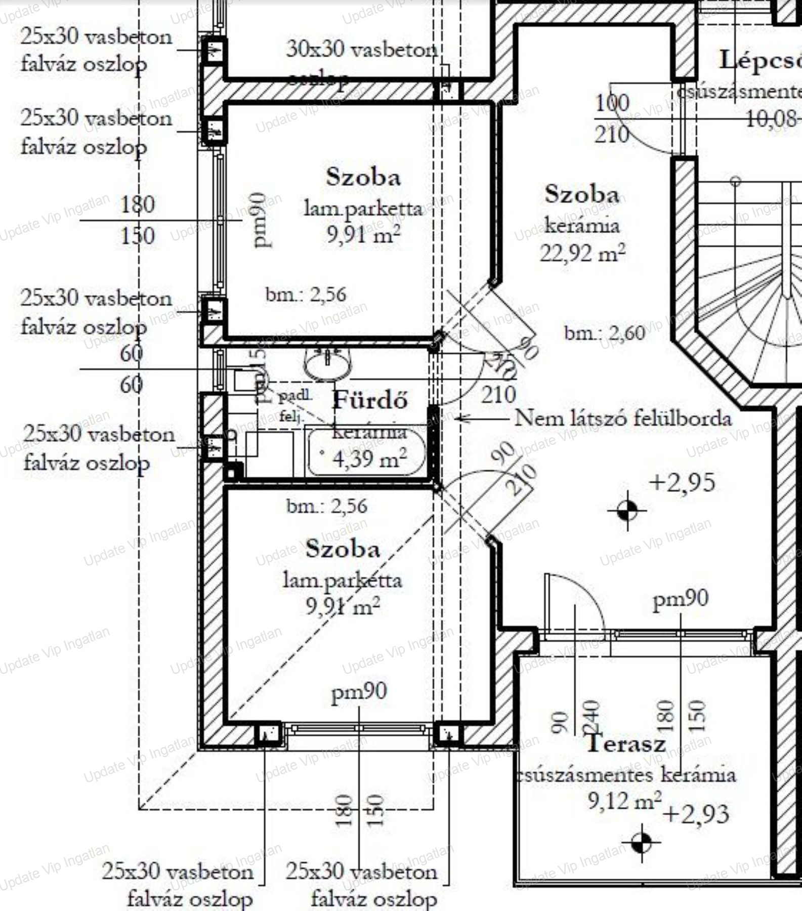
-Lakótér: 47.13m2
-Terasz: 9.12m2
-Nappali-étkező-konyha, fürdőszoba + wc, 2 db hálószoba, előtér, terasz
-Fűtés: Gázcirkó
-Hűtés: Klíma (hűtő-fűtő)
-Szigetelt épület (10cm dryvit)
-A vételár tartalmaz 1db autóbeállót.
(Zárt, udvaribeálló, megközelítése elektromos kapun keresztül.)
-Rendkívül jól hasznosítható ingatlan, pl kiadásra
-Kiváló lokáció!
-Szabadstrand: kb 150-200m
-Petőfi sétány, Plázs, Strand: 350m
-Belváros - Fő Tér - Víztorony, Sió plaza, További üzletek-szolgáltatások,
Közintézmények: kb 1000m
Bővebb információért, megtekintés egyeztetésért,
kérem keressen a megadott elérhetőségeimen!
UPDATE VIP INGATLAN IRODA további szolgáltatásai:
Energetikai tanúsítvány készítés, Érintésvédelem felülvizsgálat/szakvélemény,
Díjmentes-bank semleges hitelügyintézés, Ügyvédi háttér, Közjegyző,
Földhivatali ügyintézés, Építész, Lakberendező.

