Eladó Üzlethelyiség, Miskolc
#388473
|
249 millió Ft
|
|
| Alapterület | 662 m2 |
| Szobák száma | nincs megadva |
| Építési mód | nincs megadva |
| Állapot | Újszerű |
| Emelet | nincs megadva |
További paraméterek
- Kilátás: Utcára
- Fűtés: Villanyfűtés
Részletes leírás
MISKOLC, ÚJGYŐRI FŐTÉR, ÁRUHÁZ, PARKOLÓVAL ELADÓ!!!
Az ingatlan jellemzői:
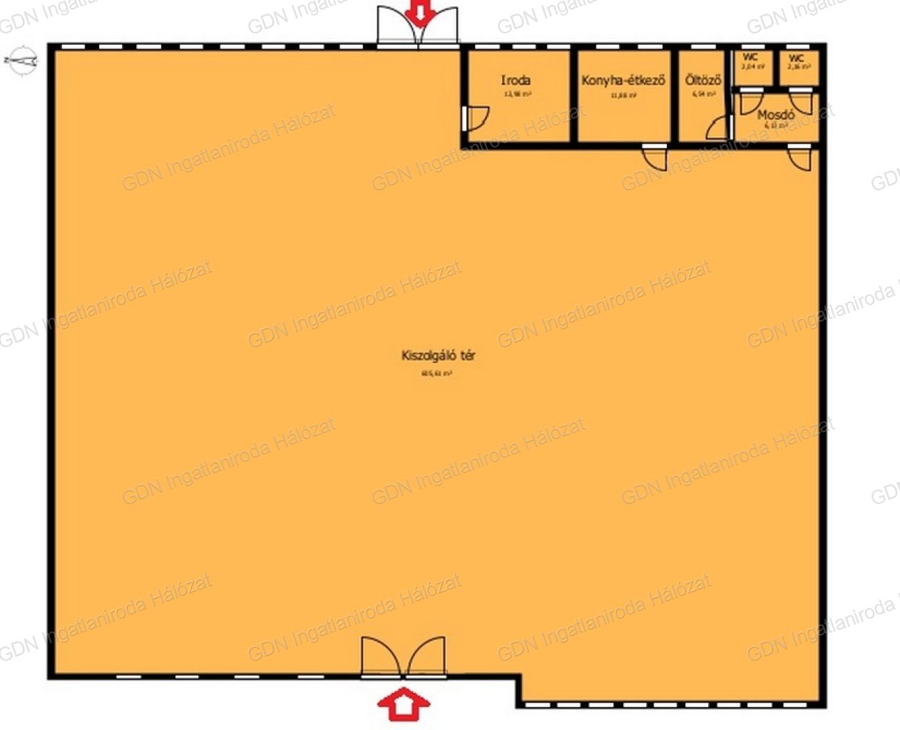
-2177 nm2-es telken helyezkedik el az acélvázas, 15cm-es szigetelt szendvicspanelből épült árucsarnok, melynek alapterülete 662m2
-kiváló minőségű anyagokból, szakszerűen lett kivitelezve
-műanyag, hőszigetelt ajtók, ablakok
- 28 parkoló található az udvaron, kamion behajtására is van lehetőség
- a biztonság érdekében riasztó, kamera rendszer, füst érzékelő beszerelve
-36 kw-os napelem rendszer, mely az energia szükségletet fedezi
-alacsony rezsi
-az épület hűtéséről, fűtéséről, 11 db 7,5kw-os, 2 db 3,5 kw-os klíma gondoskodik
-közművek: víz, villany(3x63A), szennyvíz
- gáz nincs az ingatlanban
-a belső térben egy iroda, irattár, teakonyha, öltöző, 2 db mosdó-wc található
- hátsó részen (keleti), a tető túlnyúlása miatt, fedett tároló (85m2)
- teljesen körülkerített az ingatlan (beton elem kerítés)
- a ki- és bejárat könnyen működő tolókapuval határolt (nem automatizált)
- a parkolóban elektromos autó töltő állomás kialakítható, az ehhez szükséges kábel beépítésre került
- azonnal használatba vehető, kereskedelmi tevékenységre alkalmas engedéllyel rendelkezik
Jöjjön, tekintse meg a helyszínen leendő vállalkozását!
Időpont egyeztetéssel rugalmasan tudom mutatni.
Irodánkban BANKFÜGGETLEN, INGYENES hitelügyintézésre van lehetőség.
Van eladó ingatlana? Bizza ránk, párhuzamosan a vásárlással!

