Nyitólap Hirdetésfeladás Kapcsolat
Eladó Üzlethelyiség, Miskolc, Selyemrét
#698900741
89.9 millió Ft
Alapterület 293 m2,  795 m2-es telken
Szobák száma 7 szoba + 1 félszoba
Építési mód Tégla
Állapot Felújítandó
Emelet nincs megadva

További paraméterek

  • Azonnal költözhető
  • CSOK igényelhető
  • Jó közlekedéssel
  • Kertkapcsolatos
  • Otthon Start 3%-os hitellel
  • Kilátás: Városra néző
  • Fűtés: Konvektor
  • Bútorozottság: Bútorozatlan
  • Szintek száma: 3
  • Komfort: Összkomfort
  • Akadálymentesítés: Nem akadálymentesített

Részletes leírás

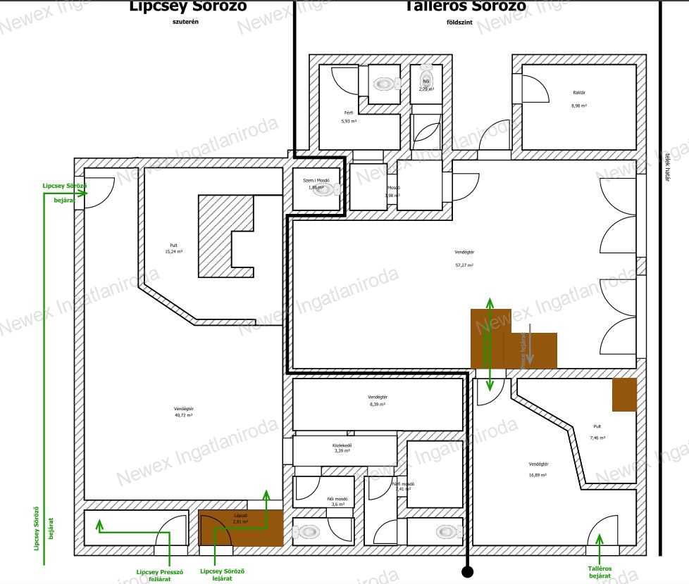
293 m2-es lakóépület eladó Miskolc, Baross Gábor utcában!

CSAK A MI KÍNÁLATUNKBAN!

 

Miskolc Selyemréten, a Baross Gábor utcában eladó egy tágas családi ház, amely ideális választás lehet vállalkozások számára.
Az 1939-ben TÉGLÁBÓL épült 293 m2-es lakóépület 795 m2-es telken helyezkedik el. 1994 és 2025 között folyamatosan újították és tartották karban az ingatlant.

- A házban összesen 7 és fél szoba található, amelyek sokféle lehetőséget kínálnak a belső elrendezés kialakítására.
- A fűtés konvektorral megoldott, emellett a komfortérzetet saját split klíma biztosítja, amely hűtésre és fűtésre egyaránt alkalmas. 
- Parkolási lehetőség is biztosított az udvarban, ami még kényelmesebbé teszi a mindennapokat. 

- Az utóbbi évtizedekben vendéglátási tevékenység folytatódott a ház minden részében és az udvaron található  115 m2-es gazdasági épületben egyaránt, ahogy a képek ezt mutatják.  
- A tulajdonos 2 hónapot kért az ingatlan teljes kiürítésére.

 

A Tiszai pályaudvar, az autópálya felhajtó és a belváros közelsége miatt többféle hasznosítási célra is kiválóan alkalmas az ingatlan!
 

Amennyiben felkeltettem az érdeklődését, kérem hívjon és örömmel megmutatom Önnek ezt a GYÖNGYSZEMET!

 

 

Kapcsolat

Palocsányi Tamás

+36 30 165-3053
[email protected]
Ossza meg a hirdetést:
FacebookGplusTwitter